Eladó ház - Szomód

eladás folyamatban!
Eladás folyamatban
KAPCSOLAT
Tóth Linda


+36 70 277

lindaponttoth@

Az időpont kérés naptár ikonja
IDŐPONTOT KÉREK
A visszahívás kérés telefon ikonja egy azt körbe ölelő nyíllal
VISSZAHÍVÁST KÉREK
Ajánlom egy ismerősömnek ikon
AJÁNLOM EGY ISMERŐSÖMNEK
Facebook megosztás ikon
MEGOSZTÁS

KAPCSOLATFELVÉTEL

Küldés

Az üzenetet sikeresen elküldtük!
Hiba történt!
INGATLAN ADATAI

Ingatlan jellege

családi ház

Belső terület

170 m²

Telek terület

800 m²

Tájolás

északkelet, délnyugat

Panoráma

udvari, utcai

Építési állapot

használt

Építési mód

tégla

Szobák száma

7 szoba

Erkély

8 m²

Terasz

15 m²

Épület szintje

2.

Ingatlan állapot

kívül: átlagos
belül: részben felújított

Ablak szerkezete

2 rétegű thermoplan

Fűtés

vegyes

Komfort

összkomfort

Parkolás

van önálló garázs

Közműállapot

csatorna: bekötve
gáz: telken
villany: bekötve
víz: bekötve

Energetika

nincs megadva

Az időpont kérés naptár ikonja
HTML
Az időpont kérés naptár ikonja
PDF
Eladó ház
Ingatlan azonosító:
185_tl

Komárom-Esztergom megye, Szomód

Irányár

63.8 M Ft

Szobák

7 szoba

Terület

170 m²

Telek terület

800 m²
INGATLAN LEÍRÁSA
Szomódon eladó családi ház! Falusi CSOK-os település!
Nemcsak kiváló, de fejlődő és összetartó község Szomód, itt kínálunk most egy eladó, két szintes családi házat, melyben egy teljesen külön lakrész is található!

Komárom-Esztergom vármegyében Tata szomszédságában fekvő település. Az M1-es autópálya legközelebbi felhajtója Tatán található, mely csodás város 3km-re, Dunaszentmiklós 5, Neszmély pedig 12 kilométer távolságra található. A megye székhelye Tatabánya, mely szintén 15 kilométeren belül található.
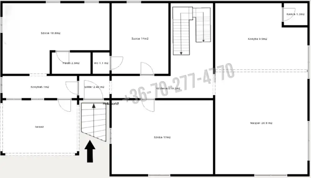
A 913 m2- bekerített sík telek Lf2 építési övezetbe tartozik, azaz 30%-a beépíthető, oldalhatáros építéssel, és 4,5-5m magasságig. A felépített ingatlan tetőtérbeépítéssel készült, és egy teljesen elkülöníthető kis lakrészt is kialakítottak a földszinten.
A hasznos lakóterület a földszinten 112 m2, melyből a külön lakrész 28 m2, az emeleten pedig 58 m2. Az ingatlanban található a földszinten:
- egy 30 m2-es, világos amerikai konyhás nappali,
-a konyhában egy kis spejz került leválasztásra,
- egy tágas közlekedő ahol kialakították az emeletre vezető lépcsőt is,
- egy hálószoba,
- egy mosókonyha, melyből fürdőszobát terveztek kialakítani, és innen nyílik egy illemhelyiség is,
- a főbejáraton egy kis előszobába érkezünk, ami belül összeköti a kis garzont a nagyobb lakrésszel.
-A kis garzonlakásnak külön bejárata is van, mely a bejárat mellett található terasztról nyílik. Itt egy kis konyhát egy nagyobb szobát (melyből akár egy hálófülke leválaszható), és egy külön fürdőszobát találunk (zuhannyal, wc-vel, mosdóval, villanybojlerrel). Tökéletes lehet nagyobb gyermeknek, idősebb szülőnek, vagy akár irodának/ vállalkozás telephelyének is.
Az emeleten a tetőtér beépítésével kaptunk lakóterületet, mely:
- egy kis közlekedő és galériás rész a lépcső mellett,
- 3db külön nyíló hálószoba (a két előre néző szobából nyílik a közös -utcafronti- erkély)
- egy majd 10m2-es fürdőszoba (sarokkáddal, mosdóval, wc. csészével) melyből egy tetőteraszra tudunk kimenni. Kiváló napozóteraszt lehet itt kialakítani, hiszen az udvar hátsó része felé privátabb teret biztosít az elhelyezkedése.

Az ingatlant az elmúlt évek alatt folyamatosan és apránként korszerűsítették, részleges felújításokat végeztek rajta. A villanyhálózat részben, a víz és fűtés rendszer, a radiátorok cserélve lettek, a bejárati ajtók, a nyílászárók egy része már cserélve lettek.
Összességében egy 4 hálószobás, tágas közös terekkel rendelkező ingatlan, további egy külön lakrésszel, mely kiválóan megfelelhet különböző élethelyzetekhez, igényekhez. Az udvar mérete a "pont kényelmes" kategóriába tartozik, ahol akár pihenő rész, veteményes, játszótér, medence stb... kialakítható; vagy akár apróbb haszonállatok tartására is lehetőséget biztosít.

A ház részben alápincézett, itt található a vegyes tüzelésű kazán. A gázcsonk a telken belül megtalálható. A villanyhálózat 3x16 A. + éjszakai áram. Az udvarban két garázs is található; az egyik könnyűszerkezetes lemezgarázs (15m2), a másik pedig egy kb. 20m2-es tégla építésű.
Az ingatlan a kamattámogatott lakáshitelek feltételeinek megfelel és fontos, hogy Szomód Falusi CSOK-os település! A hitelekről, az egyénre szabott konkrét és részletes lehetőségekről - felkészült és naprakész hitelügyintézőt tudok ajánlani. Teljeskörű ügyintézéssel lépésről lépésre támogatjuk az utadat, intézzük a papírügyeket, hogy mihamarabb átvehesd az új otthonod kulcsait!

Szomód, Tata közvetlen közelében fekvő település. Előnye a jó megközelíthetőség és a nyugodt lakókörnyezet kombinációja: Tata és Tatabánya rövid időn belül elérhető. A faluban működik óvoda, általános iskola, orvosi rendelő, védőnői szolgálat, posta, valamint több helyi vállalkozás, bolt és szolgáltató. Az önkormányzat, közösségi terek és sportlétesítmények biztosítják a mindennapi ügyintézés és az aktív élet feltételeit.

Az ingatlan megtekinthető előzetes egyeztetést követően, várom a megkeresésed!



INGATLAN ADATAI

Ingatlan jellege
családi ház
Belső terület
170 m²
Telek terület
800 m²
Tájolás
északkelet, délnyugat
Panoráma
udvari, utcai
Építési állapot
használt
Építési mód
tégla
Szobák száma
7 szoba
Erkély
8 m²
Terasz
15 m²
Épület szintje
2.
Ingatlan állapot
kívül: átlagos
belül: részben felújított
Ablak szerkezete
2 rétegű thermoplan
Fűtés
vegyes
Komfort
összkomfort
Parkolás
van önálló garázs
Közműállapot
csatorna: bekötve
gáz: telken
villany: bekötve
víz: bekötve
Energetika
nincs megadva
TÉRKÉP

Komárom-Esztergom megye, Szomód

KAPCSOLAT
Tóth Linda
Tóth Linda


+36 70 277 4770

lindaponttoth@gmail.com

KAPCSOLAT
Tóth Linda

+36 70 277

lindaponttoth@

Az időpont kérés naptár ikonja
IDŐPONTOT KÉREK
A visszahívás kérés telefon ikonja egy azt körbe ölelő nyíllal
VISSZAHÍVÁST KÉREK
Ajánlom egy ismerősömnek ikon
AJÁNLOM EGY ISMERŐSÖMNEK
Facebook megosztás ikon
MEGOSZTÁS

KAPCSOLATFELVÉTEL

Küldés

Az üzenetet sikeresen elküldtük!
Hiba történt!
INGATLAN ADATAI

Ingatlan jellege

családi ház

Belső terület

170 m²

Telek terület

800 m²

Tájolás

északkelet, délnyugat

Panoráma

udvari, utcai

Építési állapot

használt

Építési mód

tégla

Szobák száma

7 szoba

Erkély

8 m²

Terasz

15 m²

Épület szintje

2.

Ingatlan állapot

kívül: átlagos
belül: részben felújított

Ablak szerkezete

2 rétegű thermoplan

Fűtés

vegyes

Komfort

összkomfort

Parkolás

van önálló garázs

Közműállapot

csatorna: bekötve
gáz: telken
villany: bekötve
víz: bekötve

Energetika

nincs megadva

Az időpont kérés naptár ikonja
HTML
Az időpont kérés naptár ikonja
PDF
Komárom-Esztergom megye - Szomód
Komárom-Esztergom megye - Szomód
Komárom-Esztergom megye - Szomód
Komárom-Esztergom megye - Szomód
Komárom-Esztergom megye - Szomód
Komárom-Esztergom megye - Szomód
Komárom-Esztergom megye - Szomód
Komárom-Esztergom megye - Szomód
Komárom-Esztergom megye - Szomód
Komárom-Esztergom megye - Szomód
Komárom-Esztergom megye - Szomód
Komárom-Esztergom megye - Szomód
Komárom-Esztergom megye - Szomód
Komárom-Esztergom megye - Szomód
Komárom-Esztergom megye - Szomód
Komárom-Esztergom megye - Szomód
Komárom-Esztergom megye - Szomód
Komárom-Esztergom megye - Szomód
Komárom-Esztergom megye - Szomód
Komárom-Esztergom megye - Szomód
Komárom-Esztergom megye - Szomód
Komárom-Esztergom megye - Szomód
Komárom-Esztergom megye - Szomód
Komárom-Esztergom megye - Szomód
Komárom-Esztergom megye - Szomód
Komárom-Esztergom megye - Szomód
Komárom-Esztergom megye - Szomód
Komárom-Esztergom megye - Szomód
Komárom-Esztergom megye - Szomód
Komárom-Esztergom megye - Szomód
Komárom-Esztergom megye - Szomód
Komárom-Esztergom megye - Szomód
Komárom-Esztergom megye - Szomód
Komárom-Esztergom megye - Szomód