KAPCSOLAT
IDŐPONTOT KÉREK
VISSZAHÍVÁST KÉREK
AJÁNLOM EGY ISMERŐSÖMNEK
MEGOSZTÁS
KAPCSOLATFELVÉTEL
Az üzenetet sikeresen elküldtük!
Hiba történt!
INGATLAN ADATAI
Ingatlan típusa
l3
Ingatlan jellege
téglalakás
Belső terület
46 m²
Tájolás
dél
Építési állapot
új
Építési mód
tégla
Szobák száma
2 szoba
Terasz
10.5 m²
Emelet
földszint.
Épület szintje
3.
Épült
2026
Ingatlan állapot
kívül: új
belül: új
Fűtés
hőszivattyús
Komfort
összkomfort
Energetika
nincs megadva
HTML
PDF
Eladó új építésű téglalakás
Ingatlan azonosító:
4196_ko
Győr-Moson-Sopron megye, Levél
Irányár
51.9 M Ft
Szobák
2 szoba
Emelet
földszint
Terület
46 m²
INGATLAN LEÍRÁSA
Napsugár Lakópark – nyugodt otthon Levélen
A Napsugár Lakópark Levélen épül, egy csendes, fejlődő településen, amely kiváló alternatívát kínál a városi nyüzsgéssel szemben.
Mosonmagyaróvár közelsége, az M1 autópálya gyors elérése, valamint az osztrák és szlovák határ közelsége ideális választássá teszi a projektet mindennapi ingázáshoz és hosszú távú letelepedéshez.
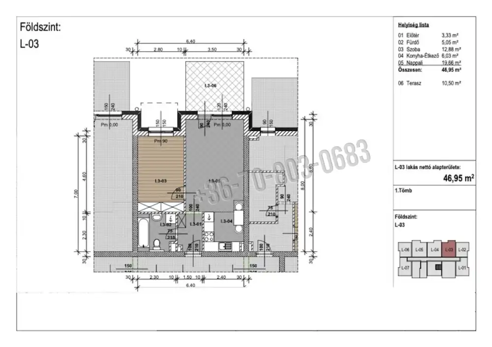
Jelen hirdetésben szereplő fölszinti lakás 46,95 m2 hasznos alapterülettel rendelkezik, elosztását tekintve rendelkezik egy amerikai konyhás nappalival, hálószobával, egy fürdőszobával, valamint egy 10,5m2 nagyságú terasszal.
Tervezett kulcsrakész átadás: 2027 II. negyedév
Minőségi kivitelezés:
Fűtés: gáz+ hőszivattyús hibrid rendszer padlófűtéssel, lakásonként egyedi mérőórával, klíma előkészítéssel
Nyílászárók: 3 rétegű, 5 légkamrás hőszigetelt üvegezés
Hőszigetelés: 15 cm EPS rendszer
Szerkezet: PTH30 N+F falazat, monolit vasbeton födém
A feltüntetett vételár, fűtéskész állapotra vonatkozik. Igény esetén a kivitelező vállalja a kulcsrakész befejezést is. Tároló és parkoló az ingatlanhoz külön vásárolható!
Amennyiben felkeltette ez a hirdetés az érdeklődését vagy további kérdései vannak, akkor keressen bizalommal.
Irodánk készséggel segít hitel, támogatások díjmentes ügyintézésében is.
A Napsugár Lakópark Levélen épül, egy csendes, fejlődő településen, amely kiváló alternatívát kínál a városi nyüzsgéssel szemben.
Mosonmagyaróvár közelsége, az M1 autópálya gyors elérése, valamint az osztrák és szlovák határ közelsége ideális választássá teszi a projektet mindennapi ingázáshoz és hosszú távú letelepedéshez.
Jelen hirdetésben szereplő fölszinti lakás 46,95 m2 hasznos alapterülettel rendelkezik, elosztását tekintve rendelkezik egy amerikai konyhás nappalival, hálószobával, egy fürdőszobával, valamint egy 10,5m2 nagyságú terasszal.
Tervezett kulcsrakész átadás: 2027 II. negyedév
Minőségi kivitelezés:
Fűtés: gáz+ hőszivattyús hibrid rendszer padlófűtéssel, lakásonként egyedi mérőórával, klíma előkészítéssel
Nyílászárók: 3 rétegű, 5 légkamrás hőszigetelt üvegezés
Hőszigetelés: 15 cm EPS rendszer
Szerkezet: PTH30 N+F falazat, monolit vasbeton födém
A feltüntetett vételár, fűtéskész állapotra vonatkozik. Igény esetén a kivitelező vállalja a kulcsrakész befejezést is. Tároló és parkoló az ingatlanhoz külön vásárolható!
Amennyiben felkeltette ez a hirdetés az érdeklődését vagy további kérdései vannak, akkor keressen bizalommal.
Irodánk készséggel segít hitel, támogatások díjmentes ügyintézésében is.
INGATLAN ADATAI
Ingatlan típusa
l3
Ingatlan jellege
téglalakás
Belső terület
46 m²
Tájolás
dél
Építési állapot
új
Építési mód
tégla
Szobák száma
2 szoba
Terasz
10.5 m²
Emelet
földszint.
Épület szintje
3.
Épült
2026
Ingatlan állapot
kívül: új
belül: új
belül: új
Fűtés
hőszivattyús
Komfort
összkomfort
Energetika
nincs megadva
TÉRKÉP
Győr-Moson-Sopron megye, Levél
KAPCSOLAT
Borbély Róbert
+36 70 803 0683
borbely.robert@komplexingatlan.com
KAPCSOLAT
IDŐPONTOT KÉREK
VISSZAHÍVÁST KÉREK
AJÁNLOM EGY ISMERŐSÖMNEK
MEGOSZTÁS
KAPCSOLATFELVÉTEL
Az üzenetet sikeresen elküldtük!
Hiba történt!
INGATLAN ADATAI
Ingatlan típusa
l3
Ingatlan jellege
téglalakás
Belső terület
46 m²
Tájolás
dél
Építési állapot
új
Építési mód
tégla
Szobák száma
2 szoba
Terasz
10.5 m²
Emelet
földszint.
Épület szintje
3.
Épült
2026
Lift
nincs megadva
Ingatlan állapot
kívül: új
belül: új
Fűtés
hőszivattyús
Komfort
összkomfort
Energetika
nincs megadva
HTML
PDF