KAPCSOLAT
IDŐPONTOT KÉREK
VISSZAHÍVÁST KÉREK
AJÁNLOM EGY ISMERŐSÖMNEK
MEGOSZTÁS
KAPCSOLATFELVÉTEL
Az üzenetet sikeresen elküldtük!
Hiba történt!
INGATLAN ADATAI
Ingatlan típusa
l16
Ingatlan jellege
téglalakás
Belső terület
31 m²
Tájolás
észak
Építési állapot
új
Építési mód
tégla
Szobák száma
1 szoba
Emelet
1.
Épület szintje
3.
Épült
2026
Lift
nincs
Ingatlan állapot
kívül: új
belül: új
Fűtés
hőszivattyús
Komfort
összkomfort
Energetika
nincs megadva
HTML
PDF
Eladó új építésű téglalakás
Ingatlan azonosító:
4210_ko
Győr-Moson-Sopron megye, Levél
Irányár
39.9 M Ft
Szobák
1 szoba
Emelet
1
Terület
31 m²
INGATLAN LEÍRÁSA
A Napsugár Lakópark egy két tömbből álló, összesen 46 lakást magában foglaló új építésű társasházi projekt, amelynek előértékesítése 2026 decemberében indul.
A beruházás mögött a térség egyik meghatározó kivitelezője áll, ami stabil alapot jelent mind a megvalósítás, mind a későbbi értékállóság szempontjából.
Az előértékesítési szakasz lehetőséget biztosít a legkedvezőbb lakások kiválasztására, valamint egyedi induló feltételek igénybevételére az első szerződők számára.
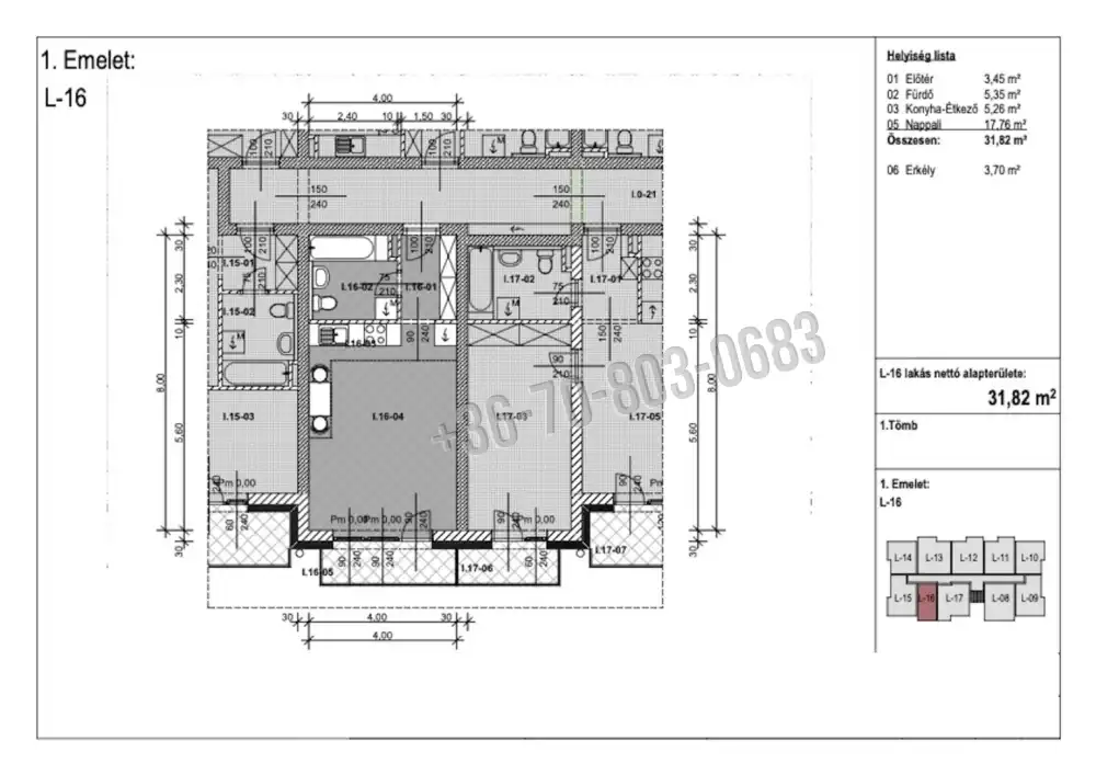
Jelen hirdetésben szereplő első emeleti lakás 31,82 m2 hasznos alapterülettel rendelkezik, elosztását tekintve rendelkezik egy amerikai konyhás nappalival és egy fürdőszobával.
Tervezett kulcsrakész átadás: 2027 II. negyedév
Minőségi kivitelezés:
Fűtés: gáz+ hőszivattyús hibrid rendszer padlófűtéssel, lakásonként egyedi mérőórával, klíma előkészítéssel
Nyílászárók: 3 rétegű, 5 légkamrás hőszigetelt üvegezés
Hőszigetelés: 15 cm EPS rendszer
Szerkezet: PTH30 N+F falazat, monolit vasbeton födém
A feltüntetett vételár, fűtéskész állapotra vonatkozik. Igény esetén a kivitelező vállalja a kulcsrakész befejezést is. Tároló és parkoló az ingatlanhoz külön vásárolható!
Amennyiben felkeltette ez a hirdetés az érdeklődését vagy további kérdései vannak, akkor keressen bizalommal.
Irodánk készséggel segít hitel, támogatások díjmentes ügyintézésében is.
A beruházás mögött a térség egyik meghatározó kivitelezője áll, ami stabil alapot jelent mind a megvalósítás, mind a későbbi értékállóság szempontjából.
Az előértékesítési szakasz lehetőséget biztosít a legkedvezőbb lakások kiválasztására, valamint egyedi induló feltételek igénybevételére az első szerződők számára.
Jelen hirdetésben szereplő első emeleti lakás 31,82 m2 hasznos alapterülettel rendelkezik, elosztását tekintve rendelkezik egy amerikai konyhás nappalival és egy fürdőszobával.
Tervezett kulcsrakész átadás: 2027 II. negyedév
Minőségi kivitelezés:
Fűtés: gáz+ hőszivattyús hibrid rendszer padlófűtéssel, lakásonként egyedi mérőórával, klíma előkészítéssel
Nyílászárók: 3 rétegű, 5 légkamrás hőszigetelt üvegezés
Hőszigetelés: 15 cm EPS rendszer
Szerkezet: PTH30 N+F falazat, monolit vasbeton födém
A feltüntetett vételár, fűtéskész állapotra vonatkozik. Igény esetén a kivitelező vállalja a kulcsrakész befejezést is. Tároló és parkoló az ingatlanhoz külön vásárolható!
Amennyiben felkeltette ez a hirdetés az érdeklődését vagy további kérdései vannak, akkor keressen bizalommal.
Irodánk készséggel segít hitel, támogatások díjmentes ügyintézésében is.
INGATLAN ADATAI
Ingatlan típusa
l16
Ingatlan jellege
téglalakás
Belső terület
31 m²
Tájolás
észak
Építési állapot
új
Építési mód
tégla
Szobák száma
1 szoba
Emelet
1.
Épület szintje
3.
Épült
2026
Lift
nincs
Ingatlan állapot
kívül: új
belül: új
belül: új
Fűtés
hőszivattyús
Komfort
összkomfort
Energetika
nincs megadva
TÉRKÉP
Győr-Moson-Sopron megye, Levél
KAPCSOLAT
Borbély Róbert
+36 70 803 0683
borbely.robert@komplexingatlan.com
KAPCSOLAT
IDŐPONTOT KÉREK
VISSZAHÍVÁST KÉREK
AJÁNLOM EGY ISMERŐSÖMNEK
MEGOSZTÁS
KAPCSOLATFELVÉTEL
Az üzenetet sikeresen elküldtük!
Hiba történt!
INGATLAN ADATAI
Ingatlan típusa
l16
Ingatlan jellege
téglalakás
Belső terület
31 m²
Tájolás
észak
Építési állapot
új
Építési mód
tégla
Szobák száma
1 szoba
Emelet
1.
Épület szintje
3.
Épült
2026
Lift
nincs
Ingatlan állapot
kívül: új
belül: új
Fűtés
hőszivattyús
Komfort
összkomfort
Energetika
nincs megadva
HTML
PDF